Charmante 2‑Zimmer Wohnung mit Terrasse & Garten

Franz-Wolter-Straße
81925 München
ID 14823
€ 1.680,-
含む: 管理費, 電気, 暖房費と給湯費, インターネット;
オプション: ガレージ

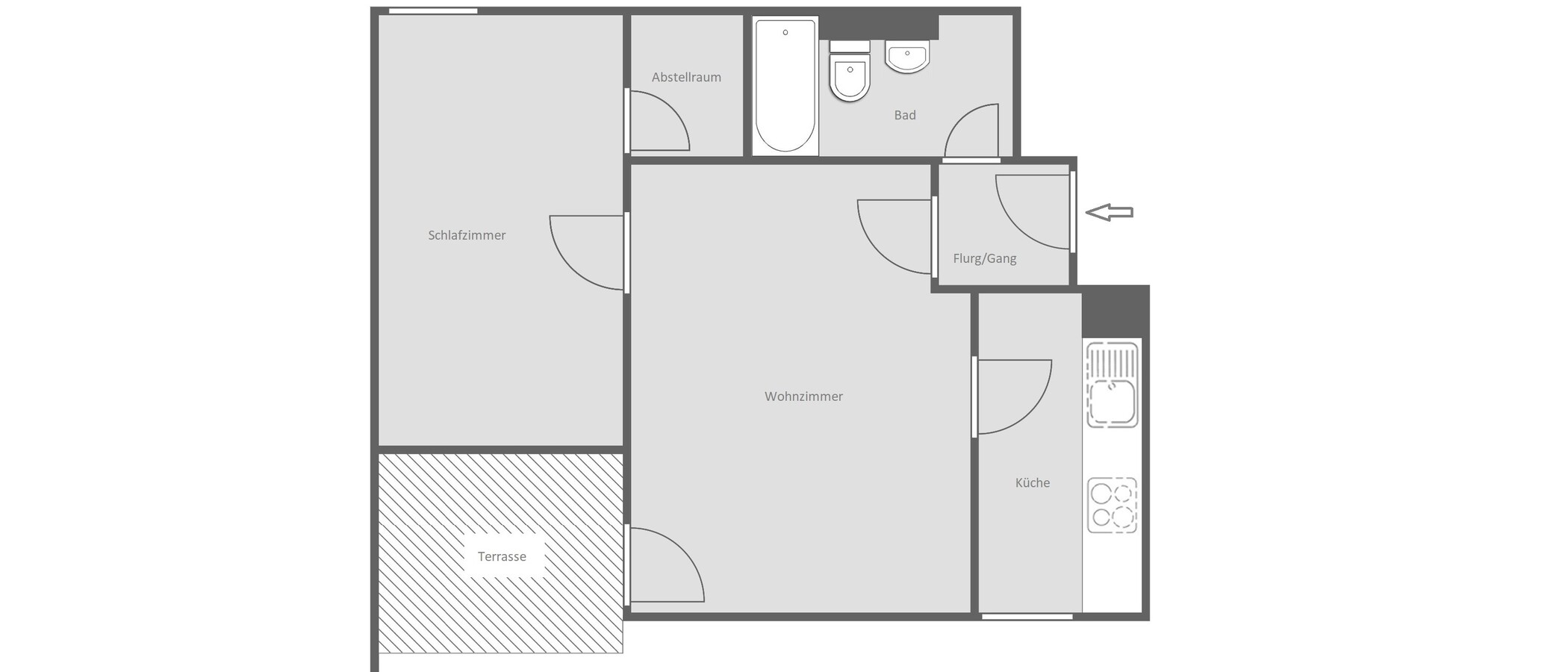
2 部屋
約 55 m²
地階(日本式一階)
賃貸可能期日
即時 から 6-36 ヶ月
最低賃貸期間
6 ヶ月
人数
2 人向き
サービス料
なし
制約事項
ノンスモーカーのみ, ペット不可

ビデオツアー

どこからでも、
にアクセスして、新しい住まいを簡単に、快適に内覧してください。

ビデオ
このフラットは私たち自身が撮影し、検査したものです。

諸設備

インターネット
テレビ
電気掃除機
洗濯機
乾燥機
食器洗い機
タオル
ベッドシーツ
ヘアードライヤー
アイロン
地下室
ガレージ
エレベーター
ベランダ
テラス

情報

階層
地階(日本式一階) - エレベーターあり
築年
1983
部屋
リビングダイニング ソファセットおよびダイニングセットあり
寝室 ダブルベッド(マットレスは2つ) 160 x 200 cm
バスタブのあるバスルーム
床材
フローリング床材, PVC 床材, タイル床貼り
家具
部分的に新品同様, ミックス, 明るい色調でおしゃれなインテリア
キッチン
システムキッチン, 窓あり, セラミック調理プレート, 換気フード, 電気オーブン, 冷凍庫付き冷蔵庫, 食器洗い機, 電気湯沸かし器, カプセル・コーヒーメーカー, ダイニングテーブル 椅子2脚つき, 食器完備
諸設備
住宅内の洗濯機
地下の乾燥室
薄型テレビ
ベッドクロス、タオル、ヘアドライヤーを含む
掃除機, アイロン台, アイロン
インターネット
無線LAN
定額制インターネット (ダウンロードは 50 Mbit/s)
料金は家賃に含まれています
スペシャル
テラス

ホームオフィス・スペース, 地下物置
駐車場
地下駐車場(1台分) - 詳細はこちら:ミュンヘンの駐車場
月額約 80 €
費用は賃貸料には含まれていません
家賃についての情報と説明
インクルーディング: 管理費, 電気代最大60,- €/月, 暖房費と給湯費、最高で月何 %s / か, インターネット
オプション: 約 80,- € までの地下ガレージ (シングル駐車場)
敷金
家賃2か月分
公共放送受信料
ドイツ公共放送受信料(日本のNHK受信料に類似)は、ご入居の方から直接、ドイツ公共放送局ARDおよびZDFにお支払いいただくもので、月額18,36ユーロです。この金額は、契約書に明記されていない限り、家賃には含まれません。 further information
省エネ建築物証明の
Year of construction: 1983
Type of Energy Performance Certificate: 消費証明書
主要エネルギー源: 地域暖房, 地域暖房, CHP化石燃料
Energy efficiency class: C
エネルギー消費量特性値: 78,45 kWh/(m²*a)
ツィルヴィア・ ツェレシネス

ツィルヴィア・ ツェレシネス

カスタマーサービス

まだぴったりのアパートが見つかりませんか?

当社の賃貸チームが、お客様のお探しをお手伝いいたします。お電話(+49 89 3408 230)またはお問い合わせフォームからお気軽にお問い合わせください。折り返しご連絡いたします。なお、土曜日もご予約を受け付けております。

検索クエリを入力する

住居の場所

Franz-Wolter-Straße

München Oberföhring

  • よい住宅街
  • とても静か
  • 約 5,6 km 北東 ミュンヘンの中心
周辺情報についてもっと詳しく
路面電車
ルート・ナンバー 16 と 37, 駅 St. Emmeram (3 分 徒歩で)
バス
ルート・ナンバー 50 と N72, 駅 Fritz-Meyer-Weg (6 分 徒歩で)
ルート・ナンバー 188, 189, 232, 50 と N72, 駅 St. Emmeram (4 分 徒歩で)

類似の物件

マンション 部屋数 2 部屋 | ミュンヘン-Bogenhausen | 11173
ビデオ
即時 から 6-48 ヶ月
2 部屋
55 m²
ミュンヘン-Bogenhausen
1,900
月額
マンション 部屋数 2 部屋 | ミュンヘン-Bogenhausen | 6213
ビデオ
27.04.2026 から 6-36 ヶ月
2 部屋
41 m²
ミュンヘン-Bogenhausen
1,800
月額
マンション 部屋数 2 部屋 | ミュンヘン-Bogenhausen | 5866
ビデオ
即時 から 6-12 ヶ月
2 部屋
108 m²
ミュンヘン-Bogenhausen
2,990
月額
マンション 部屋数 2 部屋 | ミュンヘン-Bogenhausen | 14390
ビデオ
01.05.2026 から 5 ヶ月
2 部屋
46 m²
ミュンヘン-Bogenhausen
1,550
月額
マンション 部屋数 2 部屋 | ミュンヘン-Bogenhausen | 12895
ビデオ
08.07.2026 から 6-36 ヶ月
2 部屋
40 m²
ミュンヘン-Bogenhausen
1,950
月額
Cookie notice
This website uses cookies to personalize content, customize and measure advertising, and provide a safe experience. By clicking the "Allow all and continue" button, you consent to the collection of data via cookies.
お客様のブラウザー設定のクッキーをオンにしてください。