Glockenbachviertelの高級タウンハウス賃貸物件

80469 München
ID 14318
€ 4.000,-
含む: 管理費, 電気料金, 暖房, Wasser, インターネット

2.5 部屋
約 82 m²
賃貸可能期日
02.01.2026 から 6-36 ヶ月
最低賃貸期間
6 ヶ月
Number of tenants
2 人向き
サービス料
なし
制約事項
ノンスモーカーのみ, ペットについては別途お問い合わせください

Video tour

View your new home easily and
conveniently from anywhere.

Video

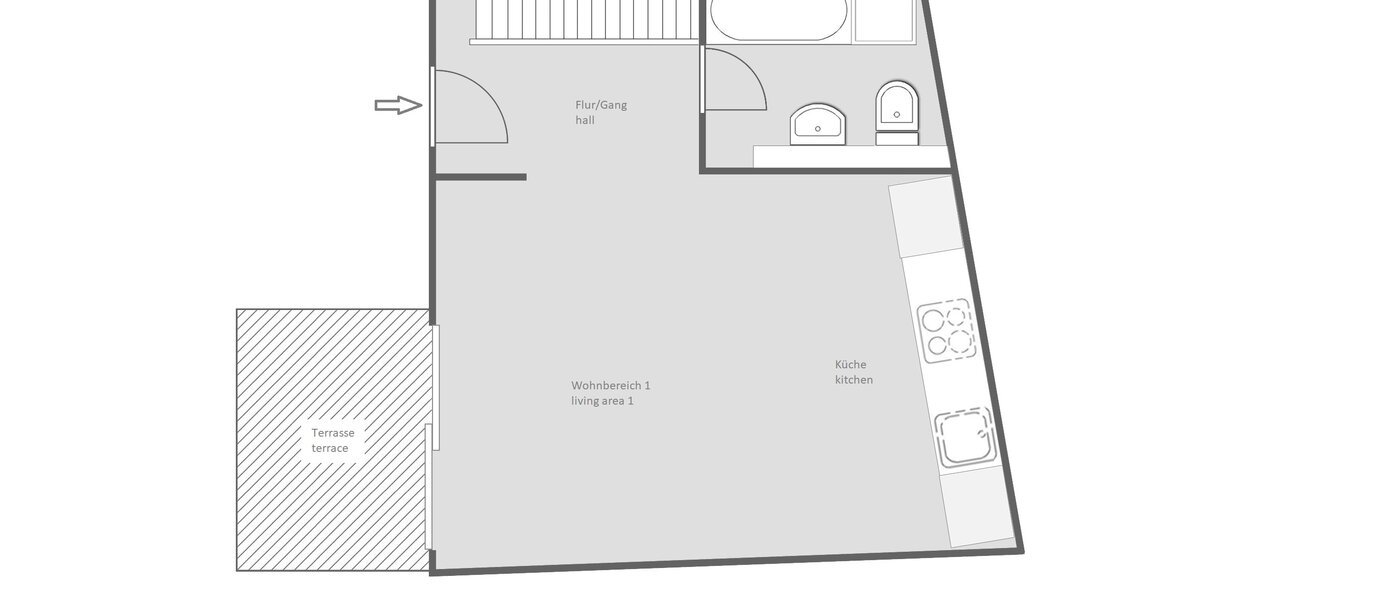
真の宝石:この新築の高級タウンハウスは、人気の高いGlockenbachviertelの裏手にある静かな場所に位置しています。3階建ての建物には、スタイリッシュな居住コンセプトが展開されています。1階には、居心地の良いダイニングエリアとラウンジエリアが調和した、エレガントなキッチン付きのリビングルームがあります。 ここから、リラックスできる日当たりの良い南西向きのテラスに出ることができます。床と同じ高さのシャワー、バスタブ、モダンなブラックの蛇口を備えた高品質のバスルームが、1階を完成させています。
1階には、南東向きのルーフガーデン付きルーフテラスがあり、ゲスト用トイレと、実用的なホームオフィススペースを備えたリビングエリアが、さらなる快適さを提供しています。ギャラリーレベルの魅力的な傾斜天井の下には、ダブルベッドが完璧に収まり、部屋に居心地の良い雰囲気を醸し出しています。

諸設備

インターネット
テレビ
電気掃除機
洗濯機
乾燥機
食器洗い機
タオル
ベッドシーツ
ヘアードライヤー
アイロン
地下室
ガレージ
エレベーター
ベランダ
テラス

Information

築年
新建築(戦後に建てられた建物) 2024
部屋
居間 ソファセットあり
ガレリー(ロフト)上のスリーピング・エリア ダブルベッド(マットレスは2つ) 160 x 200 cm
シャワーとバスタブのあるバスルーム
ゲスト用 WC
床材
フィッシュボーンフローリング床, 陶石タイル床, 床下暖房
家具
新品同様, 明るい色調でおしゃれなインテリア, 高品質
キッチン
ダイニングキッチン, 窓あり, 冷凍庫付き冷蔵庫, 食器洗い機, IH 調理器, 電気オーブン, ダイニング家具セット, 食器完備
諸設備
洗濯機と乾燥機のコンビネーション
スマートTV受信機(インターネット接続あり)
ベッドリネンとタオル類を含みます
掃除機, アイロン台, アイロン
インターネット
無線LAN
定額制インターネット (ダウンロードは 500 Mbit/s)
料金は家賃に含まれています
スペシャル
テラス, ルーフテラス
家賃についての情報と説明
インクルーディング: 管理費, 電気料金, 暖房費, 水道料金, インターネット
敷金
家賃2か月分
公共放送受信料
ドイツ公共放送受信料(日本のNHK受信料に類似)は、ご入居の方から直接、ドイツ公共放送局ARDおよびZDFにお支払いいただくもので、月額18,36ユーロです。この金額は、契約書に明記されていない限り、家賃には含まれません。 further information
省エネ建築物証明の
Year of construction: 2023
Type of Energy Performance Certificate: エネルギー必要量証明
主要エネルギー源: ガス
Energy efficiency class: C
Final energy consumption: 88,00 kWh/(m²*a)
サラ・ ヴアエリーニ

サラ・ ヴアエリーニ

シニア・カスタマーサービス

Haven't found the right flat yet?

Our rental team will be happy to help you with your search. Simply fill out our search request form and we will get back to you as soon as possible.

Submit search inquiry

住居の場所

Westermühlstraße

München Glockenbachviertel

  • とてもよいロケーション
  • イザール川のそば
  • とても静か
  • 約 1,4 km 南西 ミュンヘンの中心
近所の詳細
Uバーン
ルート・ナンバー U1, U2 と U7, 駅 Fraunhoferstraße (5 分 徒歩で)
ルート・ナンバー U1, U2, U3, U6, U7 と U8, 駅 Sendlinger Tor (12 分 徒歩で)
路面電車
ルート・ナンバー 16, 18, N17 と N27, 駅 Müllerstraße (8 分 徒歩で)
バス
ルート・ナンバー 132, 駅 Klenzestraße (6 分 徒歩で)
ルート・ナンバー 62, 駅 Stephansplatz (8 分 徒歩で)

Similar objects

メゾネット・マンション(複数階にわたるマンション) 部屋数 2.5 部屋 | ミュンヘン-Gärtnerplatzviertel | 12440
ビデオ
02.01.2026 から 6-24 ヶ月
2.5 部屋
90 m²
ミュンヘン-Gärtnerplatzviertel
2,700
€/Month
マンション 部屋数 2.5 部屋 | ミュンヘン-Isarvorstadt | 10154
ビデオ
即時 から 6-36 ヶ月
2.5 部屋
68 m²
ミュンヘン-Isarvorstadt
2,350
€/Month
マンション 部屋数 2 部屋 | ミュンヘン-Glockenbachviertel | 12668
ビデオ
即時 から 6-12 ヶ月
2 部屋
59 m²
ミュンヘン-Glockenbachviertel
2,600
€/Month
マンション 部屋数 2 部屋 | ミュンヘン-Glockenbachviertel | 11255
ビデオ
01.02.2026 から 6-24 ヶ月
2 部屋
60 m²
ミュンヘン-Glockenbachviertel
2,450
€/Month
アティック・フラット(屋根裏) 部屋数 2 部屋 | ミュンヘン-Isarvorstadt | 14172
ビデオ
即時 から 6 ヶ月
2 部屋
94 m²
ミュンヘン-Isarvorstadt
2,950
€/Month

Frequently asked questions

Our service is free of charge for you as a tenant. After signing the contract, you pay the landlord the monthly rent and a one-off deposit (usually two months' rent).
If you have found a suitable offer on our website or would like us to send you suitable offers, please first fill out our registration form in full. Our consultants will then contact you as soon as possible to discuss the next steps. We would be happy to arrange a viewing appointment on site. Once you have decided on an apartment, we will discuss this with the landlord and draw up the rental agreement once approval has been granted.
The specified rental period is binding. For example, if an apartment is offered for 1 June, it cannot be rented earlier and, as a rule, not significantly later. If your desired rental period differs from the offer, please inform your consultant. If a fixed end date is specified, the apartment cannot be extended. In the case of a variable rental period, slight deviations may be negotiable with the landlord.
Private providers of flats and houses in Munich are subject to a minimum rental period of six months. The city of Munich considers rental periods of less than six months to be misuse of residential space, which is why we only arrange flats and houses for a minimum of six months or longer.
Commercial providers such as serviced apartments, on the other hand, are not allowed to rent for longer than 6 months in many locations. We therefore distinguish between short-stay and long-term offers.
In the Tegernsee region, private providers are also allowed to rent for shorter periods, which means we can offer furnished rentals here for as little as one month.
If you would like to view the property in person, please let us know. If the flat is still rented, our consultants will arrange an appointment with the current tenant. If the flat is already vacant, appointments can usually be arranged at short notice. Please note that the flat is usually rented to the person who makes a binding commitment first. Therefore, please do not plan your appointments too late, as the properties you are interested in may be rented out in the meantime.
Upon request, you can view our properties virtually via video call. On our website, you will find high-quality photos and videos of the property and its surroundings, as well as additional detailed information about each property.
The rental agreement is concluded between the tenant and the landlord. In most cases, the rental agreement is drawn up by Mr. Lodge – in consultation with the tenant and landlord – and forwarded to both parties for signature.
As agreed in the tenancy agreement, the flat must be professionally cleaned before it is returned. When you move out, a commercial final cleaning will be carried out by a specialist company commissioned by the landlord. The costs are based on the amount of work involved and are usually borne by the tenant. The landlord receives the invoice from the cleaning company and offsets the costs against the deposit. Thorough pre-cleaning can reduce the costs of commercial cleaning. Please refer to our checklist for details of what is included in a final cleaning.
Cookie notice
This website uses cookies to personalize content, customize and measure advertising, and provide a safe experience. By clicking the "Allow all and continue" button, you consent to the collection of data via cookies.
お客様のブラウザー設定のクッキーをオンにしてください。