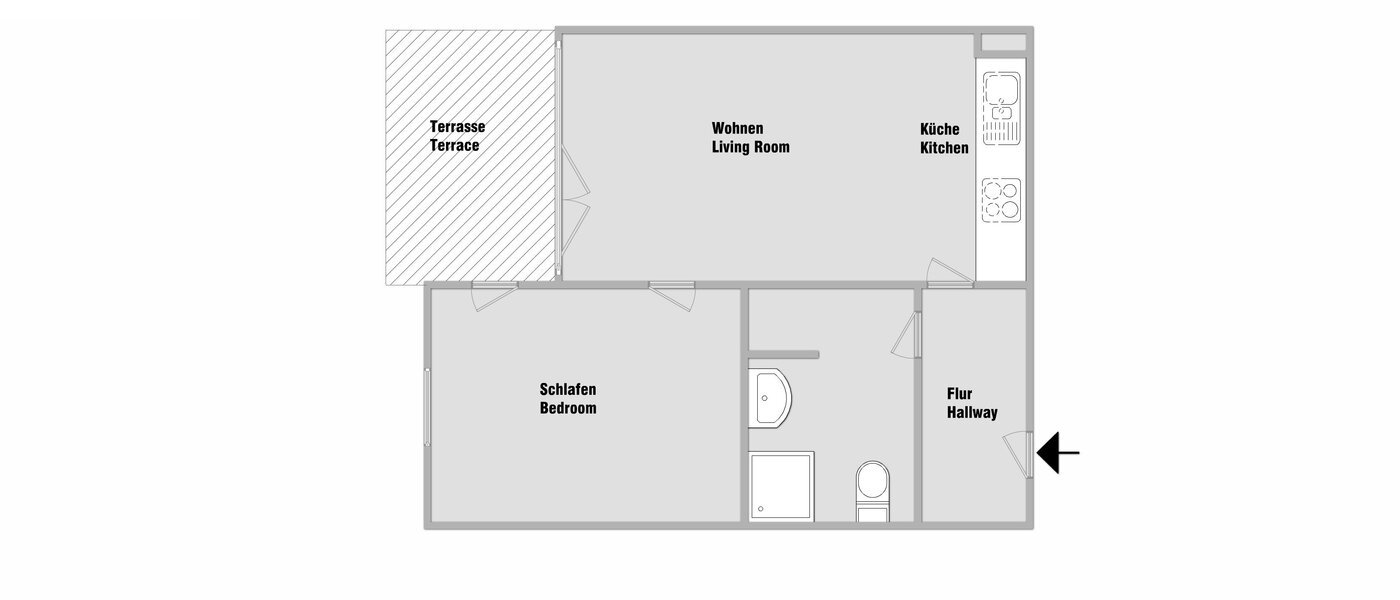
2ルームガーデンアパートメント
- 光に満ちた、西向きの、広々としたガーデンエリアを見渡せる
- 小さなプライベートガーデン付きの素敵なテラス
- ビデオインターホン
- すべてのショッピング施設が徒歩圏内
- 地下鉄 U4 ボーマーヴァルトプラッツ駅まで約 400 m / 徒歩 5 分
翻訳:DeepL
諸設備
階層:
地階(日本式一階) - エレベーターあり
築年:
2016
部屋:
リビングダイニング ソファセットおよびダイニングセットあり
寝室 ダブルベッド(マットレスは1つ)あり 140 x 200 cm
シャワーのあるバスルーム
寝室 ダブルベッド(マットレスは1つ)あり 140 x 200 cm
シャワーのあるバスルーム
床材:
フローリング床材, タイル床貼り
家具:
明るい色調でおしゃれなインテリア, とても良い, 高品質, サロン風
キッチン:
ダイニングキッチン, セラミック調理プレート, 換気フード, 電気オーブン, 冷凍庫付き冷蔵庫, 電子レンジ, 食器洗い機, 食器完備
諸設備:
住宅内の洗濯機
薄型テレビ
DVDブルーレイプレーヤー
ステレオセット
ベッドクロス、タオル、ヘアドライヤーを含む
掃除機, アイロン台, アイロン
薄型テレビ
DVDブルーレイプレーヤー
ステレオセット
ベッドクロス、タオル、ヘアドライヤーを含む
掃除機, アイロン台, アイロン
インターネット:
無線LAN
定額制インターネット
料金は家賃に含まれています
定額制インターネット
料金は家賃に含まれています
スペシャル:
テラス
庭
地下物置
庭
地下物置
駐車場:
地下駐車場 (個別) - さらなるインフォメーション: ミュンヘンでのパーキング
費用は賃貸料に含まれています
費用は賃貸料に含まれています
家賃についての情報と説明:
インクルーディング: 管理費, 電気料金, 暖房費, 水道料金, インターネット, 地下ガレージ (シングル駐車場)
敷金:
家賃2か月分
公共放送受信料:
公共放送受信料を含む - ドイツ公共放送受信料(日本のNHK受信料に類似)を含みます。
賃貸人の確認書/ 住民登録 (Wohnungsgeberbestätigung) が発行されます
ミュンヘンに来たばかりの場合、入居後2週間以内に登録事務所に登録する必要があります。その際、家主の居住確認が必要となります。
公共交通機関
周囲
München Parkstadt Bogenhausen
ショッピング:
薬局, ベーカリー, オーガニックショップ, リカーショップ, 肉屋, 青果店, 食料品店
飲食:
カフェ(複数軒), レストラン(複数軒), 立ち飲みコーヒーショップ(複数軒)
省エネ建築物証明の:
Year of construction: 2016
Type of Energy Performance Certificate: エネルギー必要量証明
主要エネルギー源: 局所加熱装置, 地域暖房, 再生可能CHP(熱電併給システム)
Energy efficiency class: B
Final energy consumption: 57,00 kWh/(m²*a)
Type of Energy Performance Certificate: エネルギー必要量証明
主要エネルギー源: 局所加熱装置, 地域暖房, 再生可能CHP(熱電併給システム)
Energy efficiency class: B
Final energy consumption: 57,00 kWh/(m²*a)
