諸設備
                                                方向:
                                            
                                            
                                                道路向き
                                            
                                        
                                                階層:
                                            
                                            
                                                2nd - エレベーターあり
                                            
                                        
                                                築年:
                                            
                                            
                                                アルトバウ(戦前に建てられた建物) 1877 高い天井 
                                            
                                        
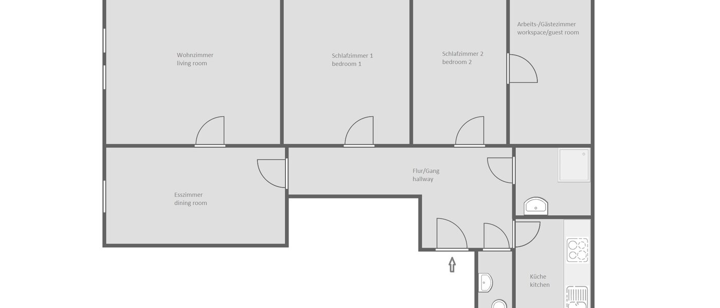
                                                部屋:
                                            
                                            
                                                居間 ソファベッドあり
ダイニングルーム
1つめの寝室 ダブルクッションベッド付き 180 x 200 cm
2つめの寝室 ダブルクッションベッド付き 180 x 200 cm
ワーキング&ゲストルーム
シャワーのあるバスルーム
WC セパレート
                                        ダイニングルーム
1つめの寝室 ダブルクッションベッド付き 180 x 200 cm
2つめの寝室 ダブルクッションベッド付き 180 x 200 cm
ワーキング&ゲストルーム
シャワーのあるバスルーム
WC セパレート
                                                床材:
                                            
                                            
                                                フィッシュボーンフローリング床, タイル床貼り
                                            
                                        
                                                家具:
                                            
                                            
                                                新品同様, 明るい色調でおしゃれなインテリア, とても良い
                                            
                                        
                                                キッチン:
                                            
                                            
                                                 システムキッチン, 窓あり, 冷凍冷蔵庫, 食器洗い機, IH 調理器, 電気オーブン, 換気フード, カプセル・コーヒーメーカー, 電気湯沸かし器, トースター, 食器完備
                                            
                                        
                                                諸設備:
                                            
                                            
                                                住宅内の乾燥機コンビネーション
薄型テレビ, ケーブルテレビ, 料金は家賃に含まれていません
ベッドクロス、タオル、ヘアドライヤーを含む
掃除機, アイロン台, アイロン
                                            
                                        薄型テレビ, ケーブルテレビ, 料金は家賃に含まれていません
ベッドクロス、タオル、ヘアドライヤーを含む
掃除機, アイロン台, アイロン
                                                インターネット:
                                            
                                            
                                                無線LAN
定額制インターネット (ダウンロードは 100 Mbit/s)
料金は家賃に含まれています
                                        定額制インターネット (ダウンロードは 100 Mbit/s)
料金は家賃に含まれています
                                                スペシャル:
                                            
                                            
                                                地下物置
                                            
                                        
                                            家賃についての情報と説明:
                                        
                                        
                                            インクルーディング: 管理費, 100,- € までの電気料金, 120,- € までのガス料金, インターネット
                                        
                                    
                                            敷金:
                                        
                                        
                                            家賃2か月分
                                        
                                    
                                            公共放送受信料:
                                        
                                        
                                            ドイツ公共放送受信料(日本のNHK受信料に類似)は、ご入居の方から直接、ドイツ公共放送局ARDおよびZDFにお支払いいただくもので、月額18,36ユーロです。この金額は、契約書に明記されていない限り、家賃には含まれません。
further information
                                        
                                    賃貸人の確認書/ 住民登録 (Wohnungsgeberbestätigung) が発行されます
                        
                            
                                    ミュンヘンに来たばかりの場合、入居後2週間以内に登録事務所に登録する必要があります。その際、家主の居住確認が必要となります。
                                
                        
                    公共交通機関
周囲
München Isarvorstadt
ショッピング:
薬局, ベーカリー, オーガニックショップ, ブティック, ドラッグストア, リカーショップ, 徒歩で行ける距離にデパートあり, 肉屋, クリーニング店, 食料品店, コインランドリー, ウイークリー・マーケット
飲食:
バー(複数軒), ビヤガルテン(複数軒), カフェ(複数軒), 映画館, パブおよびバー(複数軒), ピザ・レストラン (複数軒), レストラン(複数軒), 立ち飲みコーヒーショップ(複数軒)
                                                省エネ建築物証明の:
                                            
                                            
                                                当該建築物はGEGの要請の対象ではありません
                                            
                                        