販売
Unterföhring: モダンなセミデタッチハウス
物件タイプ:
セミ・デタッチド・ハウス(一戸建てを二つに分けた家屋)
リビングエリア:
117.91 m²
建設年:
2004
使用可能面積約:
154.69 m²
敷地面積はおよそ:
167 m²
コンディション:
行き届いた手入れ
ベッドルーム:
3
バスルーム:
2
ゲスト用トイレ:
イエス
地下室:
イエス
キッチン:
イエス
階数:
2
フローリング:
タイル
トップハイライト
- 強固なレンガ構造による健康的な室内環境
- 断熱システムによる完全断熱ファサード
- テラス屋根の太陽光発電システム
説明
ようやく家族全員のスペースが確保された
このモダンな半戸建住宅は、Unterföhringの静かなエリアに位置しています。2004年に建築され、レンガ造りの健康的な建物です。ファサードにはサーマル・コンポジット・システムによる最新の完全断熱が施され、テラスの屋根には太陽光発電システム(給電機能付き)が設置されているため、エネルギーコストを抑えることができます。
中心は、ダイニングとリビングのある1階の広々としたリビングルームです。ここから日当たりのよい南向きのテラスに出ることができ、テラスは成熟した庭に隣接している。夏には日よけが必要な日陰を提供します。キッチンにはセンスの良い備え付けのキッチンがあり、購入価格にすでに含まれている。
通常通り、玄関エリアにはゲスト用トイレとクローク用のスペースがある。庭は現在、オーナーの2人の子供がしっかりと管理している。低木が生い茂り、実用的な庭小屋もある。
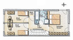
2階には、寝室とほぼ同じ広さの子供部屋が2部屋、バスタブと独立したシャワー付きのモダンな日中用バスルームがある。
高さ約2.50mの地下室には、暖房の効いた大きなホビールームと洗濯機付きのシャワールームがあり、さらに収納スペースもある。
売主によると、敷地面積は167m²で、WEGにより分割されている。
地下駐車場には広い駐車スペースが1台分あり、屋外駐車スペースもある。
購入価格住宅960,000,- € + 購入価格駐車スペース合計45,000,- € = 購入価格合計1,005,000,- €。
このモダンな半戸建住宅は、Unterföhringの静かなエリアに位置しています。2004年に建築され、レンガ造りの健康的な建物です。ファサードにはサーマル・コンポジット・システムによる最新の完全断熱が施され、テラスの屋根には太陽光発電システム(給電機能付き)が設置されているため、エネルギーコストを抑えることができます。
中心は、ダイニングとリビングのある1階の広々としたリビングルームです。ここから日当たりのよい南向きのテラスに出ることができ、テラスは成熟した庭に隣接している。夏には日よけが必要な日陰を提供します。キッチンにはセンスの良い備え付けのキッチンがあり、購入価格にすでに含まれている。
通常通り、玄関エリアにはゲスト用トイレとクローク用のスペースがある。庭は現在、オーナーの2人の子供がしっかりと管理している。低木が生い茂り、実用的な庭小屋もある。
2階には、寝室とほぼ同じ広さの子供部屋が2部屋、バスタブと独立したシャワー付きのモダンな日中用バスルームがある。
高さ約2.50mの地下室には、暖房の効いた大きなホビールームと洗濯機付きのシャワールームがあり、さらに収納スペースもある。
売主によると、敷地面積は167m²で、WEGにより分割されている。
地下駐車場には広い駐車スペースが1台分あり、屋外駐車スペースもある。
購入価格住宅960,000,- € + 購入価格駐車スペース合計45,000,- € = 購入価格合計1,005,000,- €。
エネルギー情報
暖房:
セントラルヒーティングシステム
エネルギー効率クラス:
D
エネルギー効率値:
117 kWh/(m²*a)
エネルギー源:
地域暖房
エネルギー証明書の種類:
消費証明書
建設年:
2004
翻訳:DeepL