ヘルツォークパークスイート - 非日常的な居住快適性

Mauerkircherstraße
81679 München
ID 12678
€ 1.990,-
含む: 管理費, 電気料金, 暖房費と給湯費, インターネット;
オプション: ガレージ, クリーニング

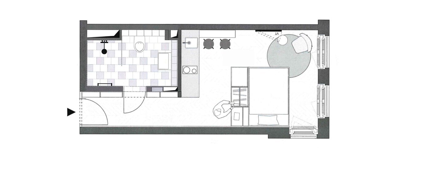
1 部屋
約 30 m²
階層 1
賃貸可能期日
01.05.2026 から 6-24 ヶ月
最低賃貸期間
6 ヶ月
人数
1 人用
サービス料
なし
制約事項
ノンスモーカーのみ, ペット不可

ビデオツアー

どこからでも、
にアクセスして、新しい住まいを簡単に、快適に内覧してください。

ビデオ
このフラットは私たち自身が撮影し、検査したものです。

ミュンヘン・BogenhausenのHerzogpark:威厳ある建築、由緒ある歴史。

古い木々に囲まれ、イザール川、モンゲラス通り、Oberföhring通りの間に位置しています。この環境の中で、ヘルツォークパークスイートは、並外れた居住の喜びを提供しています。ミュンヘンの有名な建築事務所、シュタイドル・アーキテクテンが設計した、約 26 平方メートルから 90 平方メートルの居住面積を持つ、よく考えられたユニークな 1 ベッドルームおよび 2 ベッドルームのスイートをご用意しています。 かつてのフランス総領事館の公園に建設されました。
高級な木製のドア、スタッコ技法を用いた壁のデザイン、上質なテラゾ、そしてエレガントな照明を備えた、代表的で広々としたエントランスエリア - 現代的でエレガントなデザイン。オイル仕上げのオーク材の寄木張りの床。全室に床暖房を設置。 高い防音性と制御された居住空間の換気。すべてのスイートには床から天井までの窓があり、特に明るく開放的な居住感を実現しています。スタイリッシュな壁と床のタイル、高品質でモダンな水栓、エレガントなビルトイン家具、その他多くの洗練された設備を備えたエレガントなバスルーム。

非常に実用的なサービス:週1回の清掃と14日ごとのリネン交換を追加予約することができます。

諸設備

インターネット
テレビ
電気掃除機
洗濯機
乾燥機
食器洗い機
タオル
ベッドシーツ
ヘアードライヤー
アイロン
地下室
ガレージ
エレベーター
ベランダ
テラス

情報

方向
道路向き
階層
1st - エレベーターあり
築年
2021
部屋
居間と寝室のコンビネーション:
ダブルベッド 160 x 200 cm, 箪笥, 椅子
浴室とフロアレベルのシャワー
床材
フィッシュボーンフローリング床, 床下暖房, 陶石タイル床
家具
新品同様, 高品質, デザイナー家具
キッチン
居間につながるオープンキッチン, セラミック調理プレート, 電気オーブン, 冷蔵庫, 電気湯沸かし器, エスプレッソメーカー, ダイニング家具セット, 食器完備
諸設備
地階に専属洗濯機あり
薄型テレビ
ベッドリネンとタオル類を含みます
掃除機, アイロン台, アイロン
インターネット
無線LAN
定額制インターネット (ダウンロードは 200 Mbit/s)
料金は家賃に含まれています
スペシャル
地下物置
駐車場
地下駐車場 可 - さらなるインフォメーション: ミュンヘンの駐車場
月額約 160 €
費用は賃貸料には含まれていません
家賃についての情報と説明
インクルーディング: 管理費, 電気料金, 暖房費と給湯費, インターネット
オプション: 約 160,- € までの地下ガレージ (シングル駐車場); 毎週のクリーニング
敷金
家賃2か月分
公共放送受信料
ドイツ公共放送受信料(日本のNHK受信料に類似)は、ご入居の方から直接、ドイツ公共放送局ARDおよびZDFにお支払いいただくもので、月額18,36ユーロです。この金額は、契約書に明記されていない限り、家賃には含まれません。 further information
省エネ建築物証明の
Year of construction: 2020
Type of Energy Performance Certificate: エネルギー必要量証明
主要エネルギー源: 地域暖房
Energy efficiency class: B
Final energy consumption: 66,60 kWh/(m²*a)
ニコール・ カウフマン

ニコール・ カウフマン

シニア・カスタマーサービス

まだぴったりのアパートが見つかりませんか?

当社の賃貸チームが、お客様のお探しをお手伝いいたします。お電話(+49 89 3408 230)またはお問い合わせフォームからお気軽にお問い合わせください。折り返しご連絡いたします。なお、土曜日もご予約を受け付けております。

検索クエリを入力する

住居の場所

Mauerkircherstraße

München Herzogpark

  • 瀟洒な住宅街
  • イザール川のそば, イギリス庭園そば
  • 約 2,8 km 北東 ミュンヘンの中心
周辺情報についてもっと詳しく
バス
ルート・ナンバー 187, 駅 Redwitzstraße (2 分 徒歩で)
ルート・ナンバー 59, 駅 Herzogpark (9 分 徒歩で)
ルート・ナンバー 188 と 189, 駅 Isarring (6 分 徒歩で)

類似の物件

マンション 部屋数 1 部屋 | ミュンヘン-Herzogpark | 12523
ビデオ
01.05.2026 から 6-24 ヶ月
1 部屋
35 m²
ミュンヘン-Herzogpark
2,280
月額
マンション 部屋数 1 部屋 | ミュンヘン-Herzogpark | 12567
ビデオ
01.04.2026 から 6-24 ヶ月
1 部屋
30 m²
ミュンヘン-Herzogpark
1,990
月額
アパルトマン 部屋数 1 部屋 | ミュンヘン-Arabellapark | 7848
ビデオ
01.04.2026 から 6-24 ヶ月
1 部屋
26 m²
ミュンヘン-Arabellapark
1,550
月額
マンション 部屋数 3 部屋 | ミュンヘン-Bogenhausen | 11149
ビデオ 360°
即時 から 6-24 ヶ月
3 部屋
109 m²
ミュンヘン-Bogenhausen
2,980
月額
マンション 部屋数 4 部屋 | ミュンヘン-Herzogpark | 13017
ビデオ
01.07.2026 から 6-36 ヶ月
4 部屋
125 m²
ミュンヘン-Herzogpark
4,500
月額

よくある質問

当社のサービスは、借主様には無料でご利用いただけます。ご契約後、毎月の家賃と保証金(通常家賃の2ヶ月分)を家主様にお支払いいただきます。

当ウェブサイトで適切なオファーを見つけた場合、または当社からの適切なオファーをご希望の場合は、まず登録フォームに必要事項をご記入ください。弊社コンサルタントより、次のステップについてできるだけ早くご連絡させていただきます。現地での内覧予約も承ります。お部屋が決まりましたら、家主様とご相談の上、賃貸契約書を作成させていただきます。

指定された賃貸期間には拘束力がある。例えば、6月1日入居の場合、それ以前に借りることはできません。希望する賃貸期間がオファーと異なる場合は、コンサルタントにお知らせください。終了日が決まっている場合、延長はできません。賃貸期間が変動制の場合、必要に応じて家主と交渉し、若干のずれを設けることができます。

ミュンヘンのアパートや一軒家を個人で提供する場合、最低賃貸期間は6ヶ月と定められています。ミュンヘン市は6ヶ月未満の賃貸期間を居住スペースの横領とみなしており、そのためフラットや家屋の賃貸は最低6ヶ月以上でなければ弊社を通じては許可されません。一方、サービスアパートのような営利目的の業者は、多くの場所で6ヶ月以上の賃貸を許可されていません。そのため、短期滞在用と長期滞在用を区別しています。テーゲルンゼ地方では、民間の賃貸業者も短期間の賃貸が許可されています。つまり、弊社では家具付き賃貸を1ヶ月から提供することができます。

現地での内覧をご希望の場合は、その旨お知らせください。そのフラットがまだ賃貸されている場合は、弊社のコンサルタントが現在の賃借人にアポイントメントを手配いたします。すでに空室になっている場合は、通常、急なご連絡でもアポイントメントをお取りすることが可能です。フラットは、通常、最初に確約をした方に貸し出されます。そのため、あまり遅い時間にアポイントメントを取らないようにご注意ください。

ご要望に応じて、ビデオ通話によるバーチャル内覧も可能です。当社のウェブサイトでは、物件や周辺地域の高品質な写真やビデオ、各物件の詳細情報をご覧いただけます。

賃貸契約は、借主と貸主の間で締結されます。ほとんどの場合、賃貸契約書は、借主様、貸主様と相談の上、Mr. Lodge が作成し、両当事者に送付され、署名されます。

借家契約で合意されたとおり、フラットは専門業者によるクリーニングを受けて返却されなければなりません。借主が退去する際、商業用の最終清掃が行われますが、これは貸主が専門業者に委託します。費用は時間と材料費で計算され、通常は借主が負担します。家主は清掃会社から請求書を受け取り、その費用を敷金と相殺する。事前清掃を徹底することで、業務用清掃のコストを削減することができます。最終清掃に含まれる内容については、チェックリストをご参照ください。

Cookie notice
This website uses cookies to personalize content, customize and measure advertising, and provide a safe experience. By clicking the "Allow all and continue" button, you consent to the collection of data via cookies.
お客様のブラウザー設定のクッキーをオンにしてください。