Tegernsee の素晴らしい景色を望むアパートメント賃貸
Tegernsee 谷は、伝統と現代、優れたインフラ、そして山々に囲まれたユニークな自然景観が融合した、この国で最も美しい場所のひとつとして、非常に大きな魅力に溢れています。Tegernsee が「すぐそば」にあるこの美しく広々とした屋根裏部屋は、その魅力で高い評価を得ています。美しくモダンなインテリアは、すぐに居心地の良さを感じさせてくれます。このアパートのハイライトは、西向きの大きな窓で、リビングとダイニングのあらゆる場所からテゲルン湖とロッタッハー湾の素晴らしい景色を眺めることができます。バルコニーで朝の朝食を楽しんだり、夕方には、湖とテゲルン湖の山の風景の素晴らしい景色を眺めながら、美味しいワインをお楽しみください。
翻訳:DeepL
諸設備
方向:
道路向き, 湖へ
階層:
1st - エレベーターなし
築年:
2007
部屋:
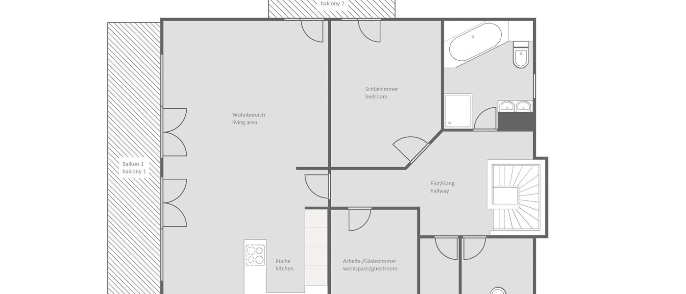
リビングダイニング 革張りのソファセット ダイニング・テーブル&チェアセット完備
寝室 ダブルベッド(マットレスは2つ) 180 x 200 cm
ソファベッド付きワーキング&ゲストルーム
シャワーとバスタブのあるバスルーム
ゲスト用 WC
寝室 ダブルベッド(マットレスは2つ) 180 x 200 cm
ソファベッド付きワーキング&ゲストルーム
シャワーとバスタブのあるバスルーム
ゲスト用 WC
床材:
陶石タイル床
家具:
部分的に新品同様, 部分的にアンティーク, 高品質
キッチン:
居間につながるオープンキッチン, 窓あり, 冷凍庫付き冷蔵庫, 食器洗い機, セラミック調理プレート, 電気オーブン, 換気フード, 電子レンジ, コーヒーメーカー, 食器完備
諸設備:
住宅内の乾燥機コンビネーション
薄型テレビ, 衛星テレビ
ベッドリネンとタオル類を含みます
掃除機, アイロン台, アイロン
暖炉
薄型テレビ, 衛星テレビ
ベッドリネンとタオル類を含みます
掃除機, アイロン台, アイロン
暖炉
インターネット:
無線LAN
定額制インターネット (ダウンロードは 250 Mbit/s)
料金は家賃に含まれています
定額制インターネット (ダウンロードは 250 Mbit/s)
料金は家賃に含まれています
スペシャル:
日の光のよくさしこむ住居
2つのベランダ
レーク・ヴュー, マウンテンヴュー
納戸・物入れ
2つのベランダ
レーク・ヴュー, マウンテンヴュー
納戸・物入れ
駐車場:
屋外駐車スペース
費用は家賃に含まれます
独立した駐車場 - さらなるインフォメーション
月額約 150 €
費用は賃貸料には含まれていません
費用は家賃に含まれます
独立した駐車場 - さらなるインフォメーション
月額約 150 €
費用は賃貸料には含まれていません
家賃についての情報と説明:
インクルーディング: 管理費, 電気料金, 暖房費, 水道料金, インターネット, 戸外駐車場
オプション: 独立した駐車場 150,- €
オプション: 独立した駐車場 150,- €
敷金:
家賃2か月分
公共放送受信料:
ドイツ公共放送受信料(日本のNHK受信料に類似)は、ご入居の方から直接、ドイツ公共放送局ARDおよびZDFにお支払いいただくもので、月額18,36ユーロです。この金額は、契約書に明記されていない限り、家賃には含まれません。
further information
賃貸人の確認書/ 住民登録 (Wohnungsgeberbestätigung) が発行されます
テーゲルンゼーに初めて来られた方は、入居後2週間以内に住民登録をしてください。その際、家主の居住確認が必要となります。
周囲
Tegernsee
ショッピング:
薬局, ベーカリー, オーガニックショップ, ブティック, ドラッグストア, リカーショップ, 肉屋, 青果店, クリーニング店, 食料品店
飲食:
バー(複数軒), ビヤガルテン(複数軒), カフェ(複数軒), 映画館, パブおよびバー(複数軒), ピザ・レストラン (複数軒), レストラン(複数軒), 立ち飲みコーヒーショップ(複数軒)
省エネ建築物証明の:
Year of construction: 2007
Type of Energy Performance Certificate: エネルギー消費量証明
主要エネルギー源: ガス
Energy efficiency class: B
エネルギー消費量特性値: 64,90 kWh/(m²*a)
Type of Energy Performance Certificate: エネルギー消費量証明
主要エネルギー源: ガス
Energy efficiency class: B
エネルギー消費量特性値: 64,90 kWh/(m²*a)
