美しい4ルームのメゾネットアパートメント
- 広々とした階段とエレベーターを備えた2018年新築物件
- リビングエリアと2階のベッドルームにエアコンを完備。
- 高品質でスタイリッシュかつモダンな家具と調度品、トレンディなアクセントを加えた全体的なコンセプトの調和。
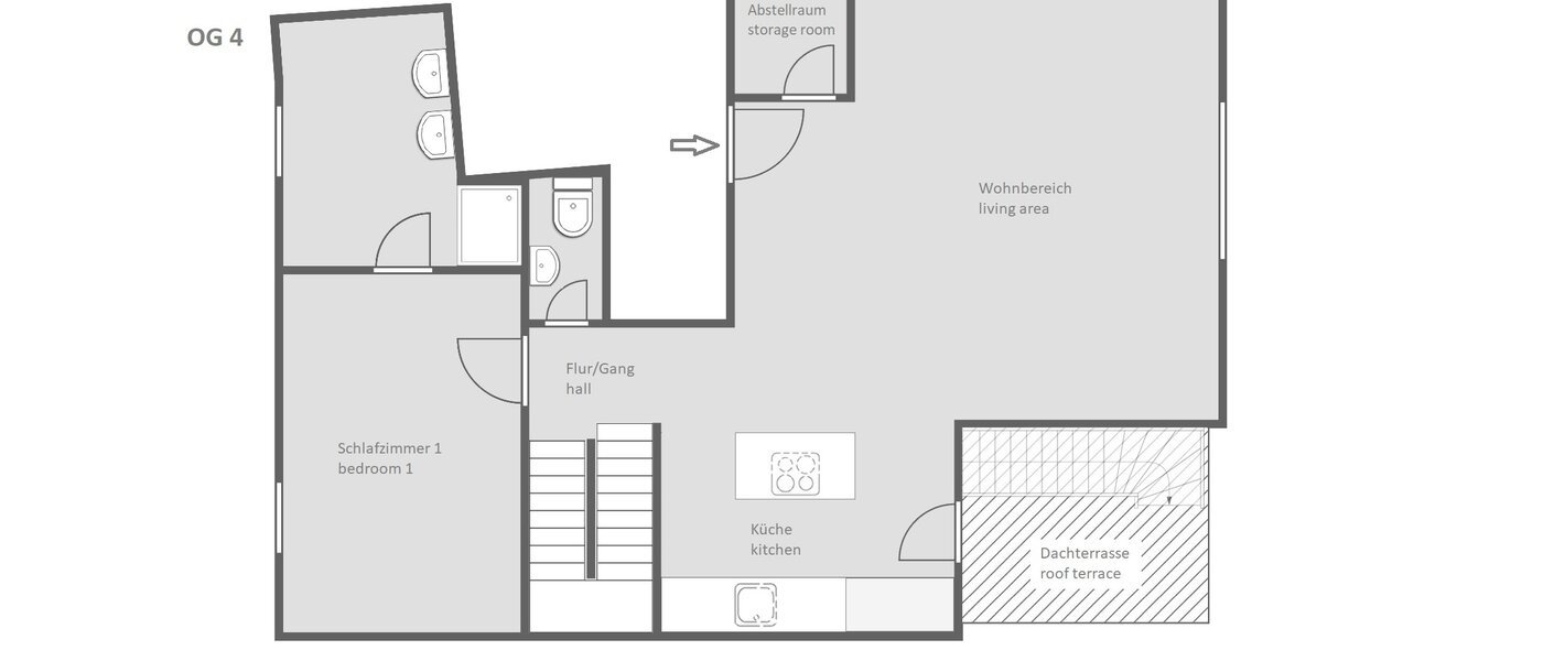
- 4階の広々とした日当たりの良いリビングエリア
- アイランドキッチン、IHコンロ付きの広くて高品質なオープンキッチン
- キッチンからルーフテラスへアクセス可能
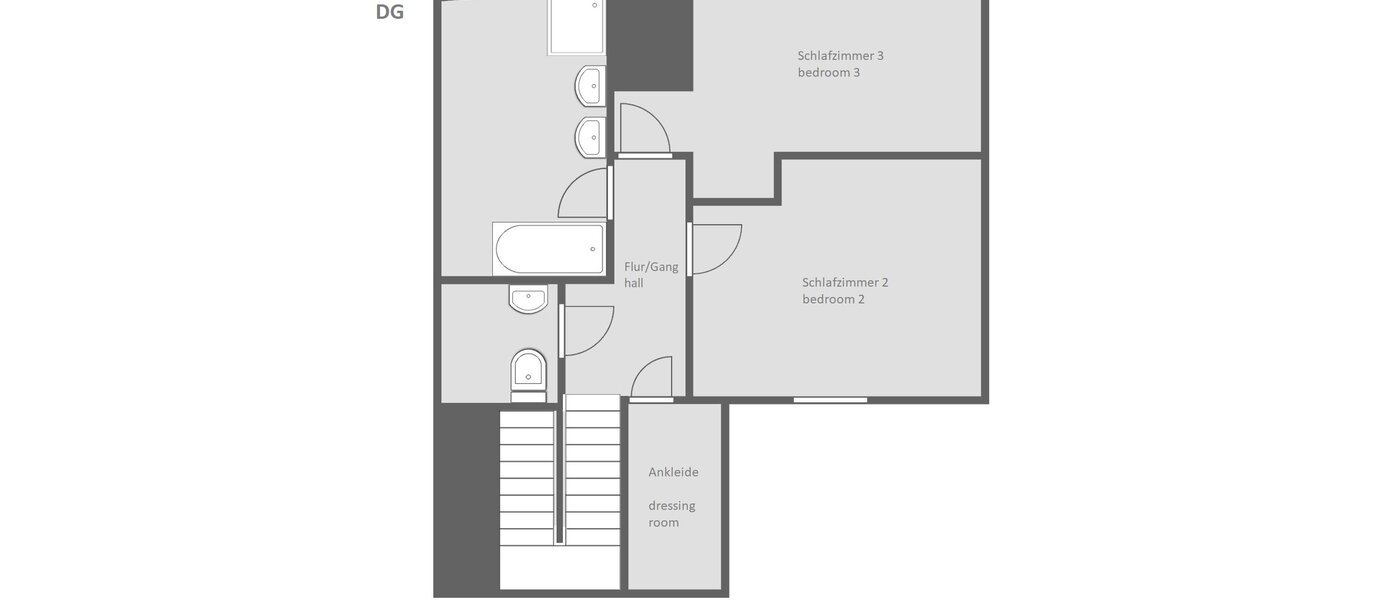
- 快適な3つのベッドルーム:4階のマスターベッドルームには大型ウォークインシャワー付きバスルーム、最上階には2つのベッドルームを完備。
- 4階のマスターベッドルームは緑豊かで静かな中庭に面している。
- 大きなバスルームが2つあり、2つ目のバスルームは最上階にある。
- 最上階にゲスト用トイレ
- 4階のバスルームにシーメンス製洗濯乾燥機、1階のユーティリティルームにシーメンス製洗濯機(バリオパーフェクトiQ700)とタンブル乾燥機(シーメンス製iSensoric)。
- リビングと寝室は木目調の美しいモダンなビニールフローリング。
- 実用的な小型ウォークインクローゼット(1階
- 階段下の実用的なクローク/クローゼットエリア
- 4階のフラットエントランス横の収納スペース
- 中庭を見渡せる2つの大きな窓のある、1階の広くて明るいユーティリティルーム
- 中庭のテラスと駐輪スペース
- 中庭の共同庭
- ビデオ・インターホン・システム
高品質の防音窓。窓を閉めれば、南側のヒルダッハ通りに接する線路の往来はほとんど気にならない。
ショッピング施設が非常に充実している:モダンでトレンディーなPasing Arcadenショッピングセンターまで徒歩10分。
Sバーンおよび地域間鉄道への接続が良い:S3~S8およびDB直通のPasing駅まで徒歩わずか12分(北側アクセス)。
翻訳:DeepL
諸設備
方向:
寝室は静かな中庭に面しています。
階層:
4th と 5th - エレベーターあり
築年:
2017
部屋:
リビングダイニング ソファセットおよびダイニングセットあり
1つめの寝室 ダブルベッド(マットレスは2つ) 180 x 200 cm
ダブルベッド(マットレスは2つ)のある2つめの寝室 180 x 200 cm
ダブルベッド(マットレスは2つ)のある3つめの寝室 140 x 200 cm
ウオークイン・クローゼット
バスルーム2部屋
シャワーとバスタブのあるバスルーム
シャワーのあるバスルーム
ゲスト用 WC
WC セパレート
1つめの寝室 ダブルベッド(マットレスは2つ) 180 x 200 cm
ダブルベッド(マットレスは2つ)のある2つめの寝室 180 x 200 cm
ダブルベッド(マットレスは2つ)のある3つめの寝室 140 x 200 cm
ウオークイン・クローゼット
バスルーム2部屋
シャワーとバスタブのあるバスルーム
シャワーのあるバスルーム
ゲスト用 WC
WC セパレート
床材:
PVC 床材, タイル床貼り
家具:
部分的に新品, 新品同様, 3~5 年, 明るい色調でおしゃれなインテリア, 高品質, デザイナー・スタイル, モダン・ライン, エレガントなスタイル
キッチン:
ハイクオリティー 居間につながるオープンキッチン, 窓あり, すべての設備あり, 換気フード, 電気オーブン, IH 調理器, 冷凍冷蔵庫, 電子レンジ, 食器洗い機, カプセル・コーヒーメーカー, ミルク泡だて器, 食器完備
諸設備:
専属洗濯機
独自のドライヤー
薄型テレビ, ケーブルテレビ, 料金は家賃に含まれています
ステレオセット
ベッドリネンとタオル類を含みます
掃除機, アイロン台, アイロン
独自のドライヤー
薄型テレビ, ケーブルテレビ, 料金は家賃に含まれています
ステレオセット
ベッドリネンとタオル類を含みます
掃除機, アイロン台, アイロン
インターネット:
無線LAN
定額制インターネット (ダウンロードは 100 Mbit/s)
料金は家賃に含まれています
定額制インターネット (ダウンロードは 100 Mbit/s)
料金は家賃に含まれています
スペシャル:
日の光のよくさしこむ住居
眺望のよいルーフテラス
見通しのよい眺め, 緑豊かな中庭への眺め, 屋根屋根を見下ろす眺め
共有ガーデン
物件は2階層にわたります, エアコン, 納戸・物入れ, 防音窓, 地下物置
眺望のよいルーフテラス
見通しのよい眺め, 緑豊かな中庭への眺め, 屋根屋根を見下ろす眺め
共有ガーデン
物件は2階層にわたります, エアコン, 納戸・物入れ, 防音窓, 地下物置
駐車場:
家賃についての情報と説明:
インクルーディング: 管理費, 暖房費, 水道料金, インターネット
プラス: 電気料金
オプション: 100,- € ガレージ
プラス: 電気料金
オプション: 100,- € ガレージ
敷金:
家賃2か月分
公共放送受信料:
公共放送受信料を含む - ドイツ公共放送受信料(日本のNHK受信料に類似)を含みます。
賃貸人の確認書/ 住民登録 (Wohnungsgeberbestätigung) が発行されます
ミュンヘンに来たばかりの場合、入居後2週間以内に登録事務所に登録する必要があります。その際、家主の居住確認が必要となります。
公共交通機関
省エネ建築物証明の:
Year of construction: 2017
Type of Energy Performance Certificate: エネルギー消費量証明
主要エネルギー源: ガス
Energy efficiency class: B
エネルギー消費量特性値: 66,80 kWh/(m²*a)
Type of Energy Performance Certificate: エネルギー消費量証明
主要エネルギー源: ガス
Energy efficiency class: B
エネルギー消費量特性値: 66,80 kWh/(m²*a)
