皆様の窓口
Dr. コルネリア・ コロナキス
Dr. コルネリア・ コロナキス
不動産業者
+49 89 340 823-546
部屋
1.5
リビングエリア
57 m²
販売価格
€ 699,000,-
手数料
2.975% 付加価値税込み
ロケーション
80639 München

FRIENDS TOWER - ライフスタイルのある住まい - 間もなく空室


識別子:
70313
物件タイプ:
Apartment
リビングエリア:
57 m²
建設年:
2016
住宅手当:
487 €
コンディション:
行き届いた手入れ
エレベーター:
イエス
バスルーム:
1
ゲスト用トイレ:
イエス
地下室:
イエス
キッチン:
イエス
階:
5
フローリング:
パルケ, タイル

手数料

購入者手数料:2.975%(19%の付加価値税込み)

トップハイライト


  • 南向きの明るいアパート - 天井高約2.80m - ユニークな居住コンセプト キッチン: - 統合された、高品質の設備を備えたキッチン - Holzrausch社による大工仕事 - 換気扇、電気オーブン、誘導コンロ、冷蔵庫、食器洗浄機 リビング/ダイニングエリア: - フラットスクリーンテレビ
  • 静かな休息空間のための独立した寝室 - 3層断熱・防音ガラスと電動シェードを備えたパノラマウィンドウ - 快適な住環境のための寄木張りの床と床暖房 - 洗濯乾燥機 バスルーム:- ウォークインレインシャワーと独立したゲスト用トイレを備えた高級バスルームデザイン
  • 15 階にある屋上テラスから、ミュンヘンからアルプスまで 360° の息を飲むような眺望 - フィットネスエリア - 友人と楽しい夜を過ごせる、予約制のキッチンラウンジ - 広くて鍵のかかる自転車置き場

説明


FRIENDS TOWERS の 5 階にある、南向きのスタイリッシュな 1.5 部屋のアパートメントは、約 57 平方メートルの広さで、モダンで光に満ちた空間コンセプトを誇ります。高品質のシュライナーキッチンは、リビングとダイニングエリアにシームレスに統合されており、カーテンで仕切られた寝室はプライバシーを確保しています。 3層断熱ガラスを使用した大きなパノラマ窓と電動シェードにより、日光がたっぷり入り、快適な室内環境を実現しています。寄木張りの床、床暖房、スタイリッシュなバスルームなどのエレガントなディテールが、インテリアを引き立てています。約 2.80 メートルの高い天井が、開放感あふれる空間を強調しています。さらに、地下には実用的な収納スペースも備わっています。

FRIENDS TOWER には、アルプスを一望できる屋上テラス、フィットネスエリア、プライベートイベント用のキッチンラウンジなど、高級な共用施設があります。コンシェルジュサービスも、さらなる快適さを提供します。このアパートは、ミュンヘンで特別な住体験をお探しの方に最適です。

駐車場の月額管理費は現在 59.00 ユーロです。 購入価格 699,000 ユーロ + 駐車場 40,000 ユーロ = 合計 739,000 ユーロ

設備



    FRIENDS TOWER の快適さとライフスタイル:
    • 地下の収納スペース - フォイヤーのコンシェルジュサービス(小包の受け取り、シャツのクリーニングサービス、その他のサービス) - 1000 MBit の高速インターネット利用可能 ビルトインキッチン、ソファ、テレビ、カトラリーなどの家具・備品はすべて購入価格に含まれています。購入時に詳細な備品リストをご提供いたします。

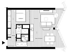
    フロアプラン


    ロケーション


    Neuhausen-Nymphenburgは、ミュンヘンで最も人気のある住宅地の一つであり、中心部に位置しながら緑豊かな環境も兼ね備えています。この地区は、豪華なNymphenburg宮殿とその公園、そしてロートクロイツ広場周辺の活気ある街並みが印象的です。この物件は、人気のレクリエーションエリアであるヒルシュガルテンに隣接しています。

    インフラも素晴らしい:近くのヒルシュガルテン・フォーラムには、スーパーマーケット、オーガニックマーケット、ドラッグストア、クリーニング店、郵便局、レストランがある。医療施設も整っていて、医療も安心。Nymphenburg通りには、デリカテッセン「ケーファー」、ブティック、カフェ、高級レストランなど、たくさんのショッピングスポットがある。

    FRIENDS Tower は、公共交通機関へのアクセスも抜群です。S バーン「ヒルシュガルテン」駅(幹線)から空港へ直通でアクセスでき、トラム 16 番および 17 番も利用できるので、さらに便利に。中央駅まで 5 分、マリエン広場まで 8 分です。ミッテラーリングから高速道路へもすぐにアクセスできます。

    周辺には、数多くのレジャー施設があります。ESV では幅広いスポーツプログラムを提供しており、ボディ&ソウルセンターでは、クライミングウォール、25 メートルのスポーツプール、ウェルネスエリアでリラックスすることができます。イングリッシュガーデン、Nymphenburg 宮殿公園、ヒルシュガルテン、オリンピアパークなどの緑豊かなオアシスでは、リラクゼーションやさまざまなレジャーを楽しむことができます。

    エネルギー情報


    暖房:
    床下暖房
    エネルギー効率クラス:
    B
    エネルギー効率値:
    60 kWh/(m²*a)
    エネルギー源:
    地域暖房
    エネルギー証明書の種類:
    消費証明書
    建設年:
    2016

    追加情報


    このアパートは現在、2026年2月28日まで、月額2,390ユーロ(光熱費、電気代、インターネット定額料金込み)で期間限定賃貸されています。投資用としても、ご自身でのご利用にも最適です。ご質問は、個別面談でお答えいたします。

    一時的な住居のリーディングエージェンシーである Mr. Lodge は、新しいオーナーや投資家の皆様にも、不動産に関するコンサルティング、賃貸、サービスをご提供いたします。Mr. Lodge は、この物件を独占販売しています。

    デジタルパンフレットは概要を示すものであり、すべての情報は所有者または委託者からの情報に基づいており、当社はこれについて一切の責任を負わないことをご留意ください。

    翻訳:DeepL

    問い合わせる


    Mr.ロッジ有限会社は皆様の個人情報を Mr. Lodge Privacy Policy に基づき処理いたします。

    Cookie notice
    This website uses cookies to personalize content, customize and measure advertising, and provide a safe experience. By clicking the "Allow all and continue" button, you consent to the collection of data via cookies.
    お客様のブラウザー設定のクッキーをオンにしてください。