Sendling:スタイリッシュな2部屋のアパート - 間もなく空室
手数料
購入者手数料:2.975%(19%の付加価値税込み)
トップハイライト
- 共同生活に適した間取り - 魅力的に改装済み - 広いビルトインキッチン - 趣味の良い部分家具付き - 廊下にワードローブ - 必要な家電製品がすべて揃ったキッチン - リビングルームにダイニングテーブルと椅子 - 3人掛けソファとチェスト付きのリビングルーム - ロフトベッドと一体型オフィスエリア付きベッドルーム
- 広々としたワードローブ - モダンな自然光が入るバスルーム(シャワー付き) - ガス給湯器による補助暖房、2035年に地域暖房導入予定 - 地下室に追加の収納スペース アパートは一部家具付きで販売されます。写真に写っている家具は設備の一部であり、購入価格に含まれています。
説明
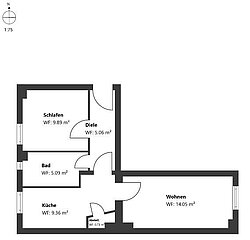
2つの広々とした部屋は、さまざまな用途に使えるし、リビング、寝室、書斎として柔軟に使えるよ。明確な間取りで、2つの部屋は別々にアクセスできるから、カップルにもシェアハウスにも特に魅力的なアパートなんだ。
独立したキッチンにはビルトインキッチンが備わっていて、日常的に必要なものを収納するのに十分なスペースがあります。空間的に分離されているため、調理エリアは機能的でありながら、アパート全体のコンセプトに調和しています。玄関には、コート掛けを置くのに十分なスペースがあり、追加の収納スペースを確保できます。 アパートは部分的に家具付きでお渡ししますので、簡単に引っ越して、自分らしいインテリアを自由にアレンジすることができます。1階にあるため、アパートへのアクセスも良く、長期的に快適にご利用いただけます。手入れの行き届いた建物と歴史的な構造が、この物件の特別な特徴を際立たせています。
設備
ロケーション
ライパート通りは、Sendlingの中心部に位置しています。ミュンヘン南西部に位置するこの地区は、のどかで家族向けの雰囲気、緑豊かな環境、イザール川や市内中心部への近接性で特に高く評価されています。 自然豊かなこの地区は、ミュンヘン動物園ヘラブルンや、イザール川沿いの広大な緑地、人気のレクリエーションエリアフラウハーなどで特に知られています。また、近くのヴェストパークや、すぐそばにあるゼンドリング公園も、散歩やリラクゼーションに最適です。 その他のレジャー施設としては、クライミング&ボルダリングセンター、ズードバート、イザール川近くのゴルフクラブなどがあります。Sバーン「Mittersendling」駅まで徒歩わずか4分と、公共交通機関へのアクセスも抜群で、ミュンヘン市内中心部まで数分で到着します。ミュンヘンのマリエン広場まで約15分です。 バス路線 53 番と 134 番は、徒歩 5 分以内でアクセスできます。バス路線 53 番は、ロートクロイツ広場を経由し、Schwabingのミュンヘナー・フライハイトで終点となります。バス路線 134 番を利用すると、17 分でミュンヘン最大の民衆祭会場、テレージエンヴィーゼに到着します。 Sendlingの中心部にある、ミュンヘンで最も重要な交通の要所である「ハラース」まで、徒歩わずか 9 分です。ここでは、広々とした座席エリアや噴水、木陰で、世紀の変わり目に建てられた、ユーゲントシュティール様式やネオ・ルネサンス様式の印象的な建築物のファサードに囲まれて、少しリラックスすることができます。 ハラス周辺には、数多くの人気レストランやショッピング施設があります。アドベントの期間中は、クリスマスマーケットが開催されます。
日常的な買い物には、スーパーマーケット、オーガニックマーケット、ドラッグストア、薬局、医院、レストランなどが周辺にあります。また、ハラスにあるSendlingの週市や、ユニークな居酒屋「アウグスティナー・シュッツェンガルテン」も、この地域の多彩な魅力をさらに引き立てています。 幼稚園、保育園、小学校もすぐ近くにあります。ダンテ・ギムナジウムやクレンツェ・ギムナジウムなどの中等学校も、公共交通機関を利用するか、徒歩で 15 分以内で簡単にアクセスできます。 Sendling へようこそ!
エネルギー情報
追加情報
一部家具付きのアパートは現在、所有者が居住しており、2026年2月1日に空室となります。投資用としても、ご自身でのご利用にも最適です。家具付き短期賃貸のトップエージェントである Mr. Lodge は、新しいオーナーや投資家の皆様に対して、不動産に関するコンサルティング、賃貸、各種サービスをご提供いたします。
Mr. Lodge は、このアパートを独占販売しています。デジタルパンフレットは概要を示すものであり、すべての情報は所有者または委託者からの情報に基づいており、当社はこれについて一切の責任を負わないことをご留意ください。
