皆様の窓口
Julia Fröhlich
Julia Fröhlich
不動産コンサルタント|営業
089 - 340 823-552
部屋
4.5
リビングエリア
102.63 m²
販売価格
€ 835,000,-
手数料
2.975% 付加価値税込み
ロケーション
81739 München

Waldperlach:3階建てメゾネット、庭、趣味の部屋、駐車スペース付き - 空室あり


識別子:
70295
物件タイプ:
メゾネット・マンション(複数階にわたるマンション)
リビングエリア:
102.63 m²
建設年:
1998
使用可能面積約:
153.16 m²
住宅手当:
478 €
コンディション:
行き届いた手入れ
ベッドルーム:
3
バスルーム:
1
ゲスト用トイレ:
イエス
テラスの数:
1
地下室:
イエス
キッチン:
イエス
フローリング:
パルケ, タイル

手数料

バイヤー手数料:2.975%(VAT19%込み)。

バーチャルツアー


トップハイライト


  • 3階建て(1階、2階、地下)の広々としたメゾネットアパート - 南西向きの日当たりの良い庭 - ダイニングエリアのある明るく広々としたリビングルーム - リビングルームには高品質の寄木張りの床 - 購入価格にビルトインキッチンが含まれています - 1階にゲスト用トイレ - 2階に2つのベッドルームとバスルーム
  • 地下にある広いホビールーム(約29平方メートル) - デュプレックス駐車場(別途15,000ユーロ) 掲載の家具は設備の一部であり、購入価格に含まれています。購入時には、備品リストをご用意しています。一部の装飾品は、当社のインテリア部門が提供しているもので、購入価格には含まれていませんが、ご希望に応じてご購入いただけます。

説明


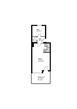
この特別なメゾネットアパートは、1階、2階、地下の3階にまたがっていて、快適な暮らしと広々とした空間を提供しています。手入れの行き届いたこの物件は、とても良い状態で、すぐに入居できます。居住面積は102平方メートル以上、総居住面積と利用面積は153平方メートル以上に及びます。

1階には、高級な寄木張りの床が敷かれた広々としたリビングルームがあり、リビングとダイニングエリアに十分なスペースがあります。ここから南西向きの庭に直接アクセスでき、日当たりの良い時間、楽しい夜、または屋外でのリラックスしたひとときを過ごすのに理想的な隠れ家となっています。モダンなシステムキッチンとゲスト用トイレが1階を調和的に完成させています。

2階には、3つの明るいベッドルームとスタイリッシュなバスルームがあり、家族全員にとって最適な休息空間となっています。特に注目すべきは、地下にある約29平方メートルの広々としたホビールームで、フィットネスルーム、ホームシアター、ホームオフィスなど、さまざまな用途に使用できます。

このアパートメントには、快適な駐車スペースを確保するデュプレックス駐車場(別途 15,000 ユーロ)も付属しています。 趣味の良い内装と手入れの行き届いた状態のおかげで、すぐに入居して、快適に過ごすことができます。

このメゾネット式アパートは、快適な居住空間、広々とした部屋、日当たりの良い庭を併せ持つ、要求の厳しい自己使用者に、また価値が安定している投資物件として、完璧な組み合わせです。アパートの購入価格:835,000 ユーロ + 駐車場の購入価格:15,000 ユーロ = 合計価格 850,000 ユーロ

設備


    フロアプラン


    ロケーション


    このアパートは、人気の高いWaldperlach地区に位置しています。この地区は、都市の南東部にあり、静かで交通の便も非常に良い住宅街です。一戸建てや集合住宅が密集し、緑が多く、歩道も整備されているため、非常に快適な住環境を提供しています。

    徒歩圏内には、スーパーマーケット、カフェ、レストラン、病院、学校、幼稚園など、日常生活に必要な施設がすべて揃っています。この地域は家族連れに優しい環境です。公共交通機関へのアクセスも良好で、周辺にはバス路線があり、最寄りのバス停まで歩いてすぐです。そのため、市内中心部へのアクセスも簡単です。通勤者にとっては、主要幹線道路や高速道路へのアクセスも便利な点だ。この地域は、静かで緑豊かで、必要なものがすべて手に入る、高い生活の質を提供する。家族にも通勤者にも理想的な場所だ。

    エネルギー情報


    エネルギー効率クラス:
    C
    エネルギー効率値:
    80 kWh/(m²*a)
    エネルギー源:
    天然ガス灯
    エネルギー証明書の種類:
    消費証明書
    建設年:
    1998

    追加情報


    この物件は空室であり、購入者はすぐに入居可能です。投資用としても、ご自身でのご利用にも最適です。家具付き短期賃貸のトップエージェントである Mr. Lodge は、新しいオーナーや投資家の皆様に対して、不動産に関するコンサルティング、賃貸、各種サービスをご提供いたします。Mr. Lodge は、この物件を独占販売しております。

    デジタルエクスポゼは概要を示すものであり、すべての情報は所有者または委託者からの情報に基づいており、当社はこれについて一切の責任を負わないことをご留意ください。

    翻訳:DeepL

    問い合わせる


    Mr.ロッジ有限会社は皆様の個人情報を Mr. Lodge Privacy Policy に基づき処理いたします。

    Cookie notice
    This website uses cookies to personalize content, customize and measure advertising, and provide a safe experience. By clicking the "Allow all and continue" button, you consent to the collection of data via cookies.
    お客様のブラウザー設定のクッキーをオンにしてください。