皆様の窓口
トーマス・ エンゲル
トーマス・ エンゲル
不動産業者
+49 89 340 823-545
部屋
2
リビングエリア
64.98 m²
販売価格
€ 795,000,-
手数料
2.975% 付加価値税込み
ロケーション
81545 München

Harlaching:最初の入居 - 一等地の2ルームフラット


識別子:
70372
物件タイプ:
Terrassenwohnung
リビングエリア:
64.98 m²
建設年:
2024
使用可能面積約:
71.69 m²
ガーデンエリア約:
50 m²
住宅手当:
339 €
コンディション:
ファースト・オキュペーション(入居)
エレベーター:
イエス
ベッドルーム:
1
バスルーム:
1
テラスの数:
1
地下室:
イエス
階:
1階
フローリング:
タイル, パルケ

手数料

バイヤー手数料:2.975%(VAT19%込み)。

バーチャルツアー


トップハイライト


  • 新築・初入居
  • 魅力的な建築デザイン
  • エネルギー効率クラスA+

説明


モダンな建築様式 ― あなただけの住まい

この魅力的な1階の住戸は、2024年に建設された小規模でエレガントな住宅団地内にあります。新築物件であるため、この特別な物件は最高品質の状態が保証されています。

広々としたリビングエリアからは、朝日が差し込む居心地の良いテラスへ出ることができ、その先には約50平方メートルの専用庭が広がっています。 居心地の良いリビングにはオープンキッチンが配置されており、空間に自然に溶け込んでいます。大きな窓からはたっぷりの自然光が差し込み、快適な居住空間を演出しています。

寝室には十分な収納スペースが確保されています。自然光が差し込むバスルームには、床面と同じ高さのシャワー、洗面台、トイレが備わっています。さらに、独立した収納室に加え、クローゼット用の十分なスペースも用意されています。

専用の洗濯機接続口は地下の洗濯室にあり、そこには専用の地下収納スペースも併設されています。

この物件には、地下駐車場内の専用駐車スペース1台分が付帯しています。
マンション購入価格 795,000ユーロ + 駐車スペース購入価格 39,000ユーロ = 合計 834,000ユーロ

設備



    高品質な設備

    • 約2.65メートルの高い天井高
    • 上質なオーク材のフローリング
    • バスルームには大判のファインストーンタイルを採用
    • 床面と同じ高さのシャワー
    • Grohe製の高級水栓
    • タオルウォーマー
    • 内開きヒンジ付きのエレガントなフラッシュドア
    • トリプルガラス仕様の高級木製アルミ複合窓
    • 操作しやすい電動外付けブラインド(ラフストア)
    • 個別調節可能な低温床暖房
    • 最適な室内環境を実現する、熱回収機能付き防音個別換気システム
    • 三重ロック付き玄関ドア
    • 高解像度カラーディスプレイ付きビデオインターホン
    • 高品質な天井スポットライト、全居室へのLAN配線およびテレビ接続端子を完備した充実した設備
    • バリアフリー設計による快適な居住環境
    • 電気自動車充電用接続設備を備えた地下駐車場(専用駐車スペース)
    • 南東向きの約50m²の庭(専用使用権)

    本物件は家具なしでの販売となります。写真に写っている家具や装飾品は当社のインテリア部門によるもので、販売価格には含まれておりませんが、ご希望の場合は別途ご購入いただけます。

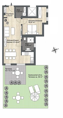
    フロアプラン


    ロケーション


    静かなHarlaching

    ミュンヘンで人気の高いHarlaching地区、グラウエルト通りに位置するこの魅力的な住宅団地は、都会の利便性と自然豊かなのどかな環境をユニークに融合させています。ミュンヘン南部の緑豊かな中心部に位置し、のどかなPerlachフォレストのすぐ隣にあります。 この広大な森林地帯には、数多くの散策路、ジョギングコース、サイクリングロードが整備されており、自然の中でのリラックスしたひとときを過ごせます。

    同時に、わずか数分の距離を流れるイザール川への近さも、この立地の魅力です。イザール川の河畔は、レジャー活動のための静かなオアシスとなっており、夏も冬も水辺でのくつろぎを誘います。 ここでは、自然に近い暮らしの利点とミュンヘンの都会的な活気が融合しており、自然とのつながりと都会生活のバランスを求めるすべての人にとって理想的な環境です。

    交通の便が極めて良いため、ミュンヘンの都心部へもすぐにアクセスできます。この地区の優れたインフラにより、車でも公共交通機関でも、都心への移動時間が短く、直通のアクセスが可能です。 近隣にはショッピング施設、学校、保育園、飲食店、医療機関などが揃っており、Harlachingでの生活を非常に快適なものにしています。

    グラウエルト通りにあるこの住宅団地は、都心への近さとミュンヘン南部の静かで緑豊かなロケーションという利点を兼ね備え、ミュンヘンで最も人気のある地区の一つにおいて、格別な居住の快適さを提供しています。

    エネルギー情報


    暖房:
    床下暖房
    エネルギー効率クラス:
    A+
    エネルギー効率値:
    28.34 kWh/(m²*a)
    エネルギー源:
    ヒートポンプ
    エネルギー証明書の種類:
    エネルギー需要証明書
    建設年:
    2024

    追加情報


    この物件は空室となっており、新しいオーナー様ご自身での居住や賃貸運用が可能です。個別にご相談を承りますので、お気軽に面談にてご相談ください(ご相談は無料・義務なし)。

    この高品質な設備を備えた2LDKマンションは、投資用物件、都心の住まい、あるいはご自身での居住に最適です。

    Mr. Lodgeは、この物件を独占販売しております。家具付き短期賃貸のリーディングカンパニーとして、Mr. Lodgeは新しいオーナー様や投資家様に対し、コンサルティング、賃貸管理、不動産に関する各種サービスも喜んでご提供いたします。

    なお、本デジタル物件概要はあくまで概要を示すものです。記載内容はすべて所有者または委託者からの情報に基づいており、当社はこれについて一切の責任を負いかねます。

    詳細については、個別面談にてご説明させていただきます。

    詳細のお問い合わせや内覧のご予約は、今すぐお電話ください。

    翻訳:DeepL

    問い合わせる


    Mr.ロッジ有限会社は皆様の個人情報を Mr. Lodge Privacy Policy に基づき処理いたします。

    Cookie notice
    This website uses cookies to personalize content, customize and measure advertising, and provide a safe experience. By clicking the "Allow all and continue" button, you consent to the collection of data via cookies.
    お客様のブラウザー設定のクッキーをオンにしてください。