地下鉄や近郊鉄道に近接した豪華な半独立住宅

80995 München
ID 12903
€ 4.200,-
含む: 管理費, インターネット, ガレージ;
プラス: 電気料金, 暖房費と給湯費, 水

5 部屋
約 162 m²
約 290 m²
賃貸可能期日
01.07.2026 から 6-48 ヶ月
最低賃貸期間
6 ヶ月
人数
5 人向き
サービス料
なし
制約事項
ご注意ください: 好まれる賃借期間は最低12ヶ月, ノンスモーカーのみ, ペット不可

ビデオツアー

どこからでも、
にアクセスして、新しい住まいを簡単に、快適に内覧してください。

ビデオ
確認済み:この家は、Mr. Lodge自身が視察し、写真を撮ったものです。

Top moderne Doppelhaushälfte mit Garten und Südterrasse. Das Haus liegt verkehrsgünstig nahe der U2/S1 Haltestelle Feldmoching. Von hier aus erreichen Sie mit der Direktlinie S1 ohne Umsteigen den Münchner Flughafen.
Im Umkreis von 3km befinden sich vier Badeseen, diese bieten zahlreiche Freizeitmöglichkeiten. Es sind hier unter anderem Grill- und Beachvolleyballplätze, Liegewiesen und Badestellen eingerichtet.
Zu den wesentlichen gehobenen Ausstattungsmerkmalen gehören:

•    Neuwertige Küche mit 2 Steinarbeitsplatten, Kücheninsel und Bora Dunstabzug
•    Terrasse und Garten in Südausrichtung
•    3 Sichtfenster-Kamin im offenen Wohnbereich
•    Masterbad mit Whirlpool und begehbarer Regendusche 
•    Im gesamten Haus 21mm dicke Echtholz-Eichendielen
•    Sämtliche Bäder mit hochwertigen Porcelanosa Fliesen
•    Zusatzbad im UG (ensuite zum Gästezimmer, mit zwei Zugängen)
•    2.50m Raumhöhe in allen Stockwerken
•    LAN Netzwerke in allen Wohn- und Schlafräumen- EG/OG/UG
•    Nachhaltige Grundwasserwärmeheizung

Das zusätzliche Apartment im Dachgeschoss ist nicht Teil des Angebots. Dieses ist mittels separierten Zugangs und Treppe zu erreichen, so dass man die DG-Mieter im Alltag nahezu nicht bemerkt.
 

諸設備

インターネット
テレビ
電気掃除機
洗濯機
乾燥機
食器洗い機
タオル
ベッドシーツ
ヘアードライヤー
アイロン
地下室
ガレージ
エレベーター
ベランダ
テラス

情報

築年
2015
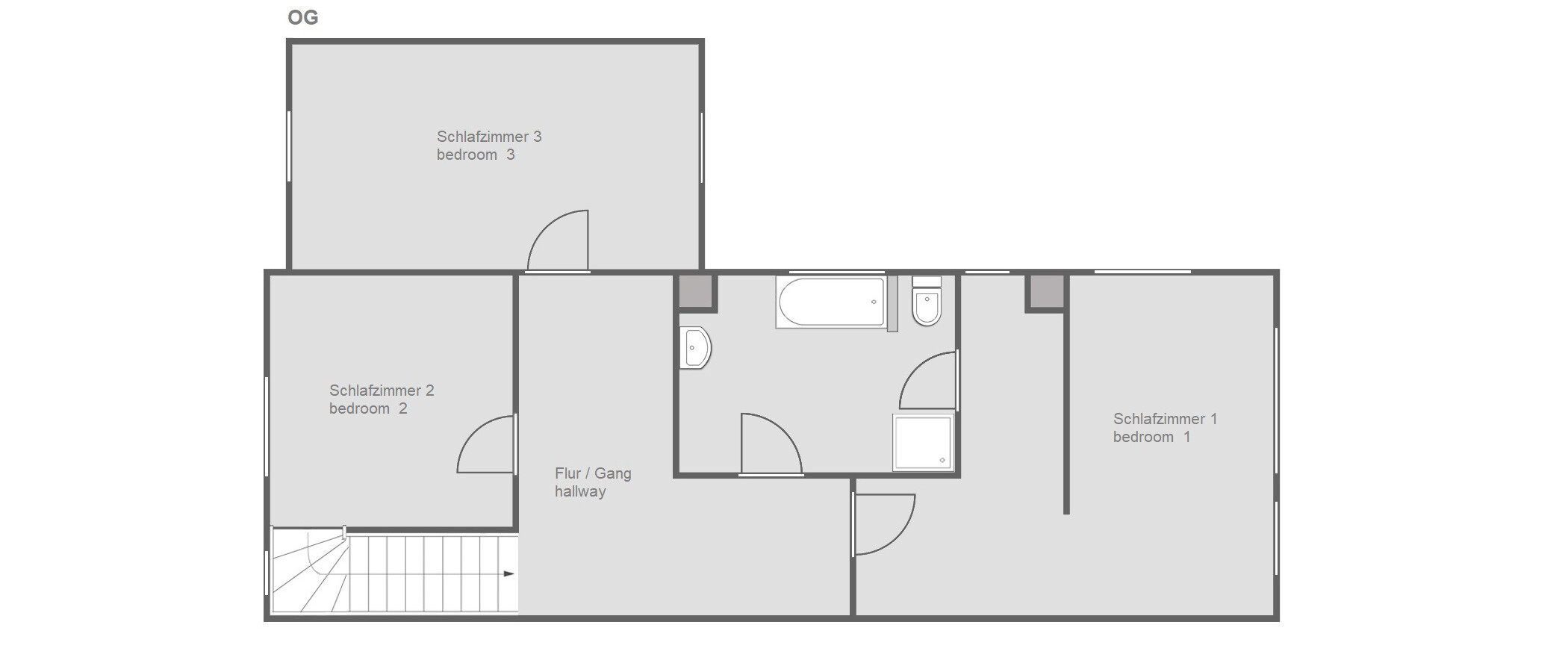
部屋
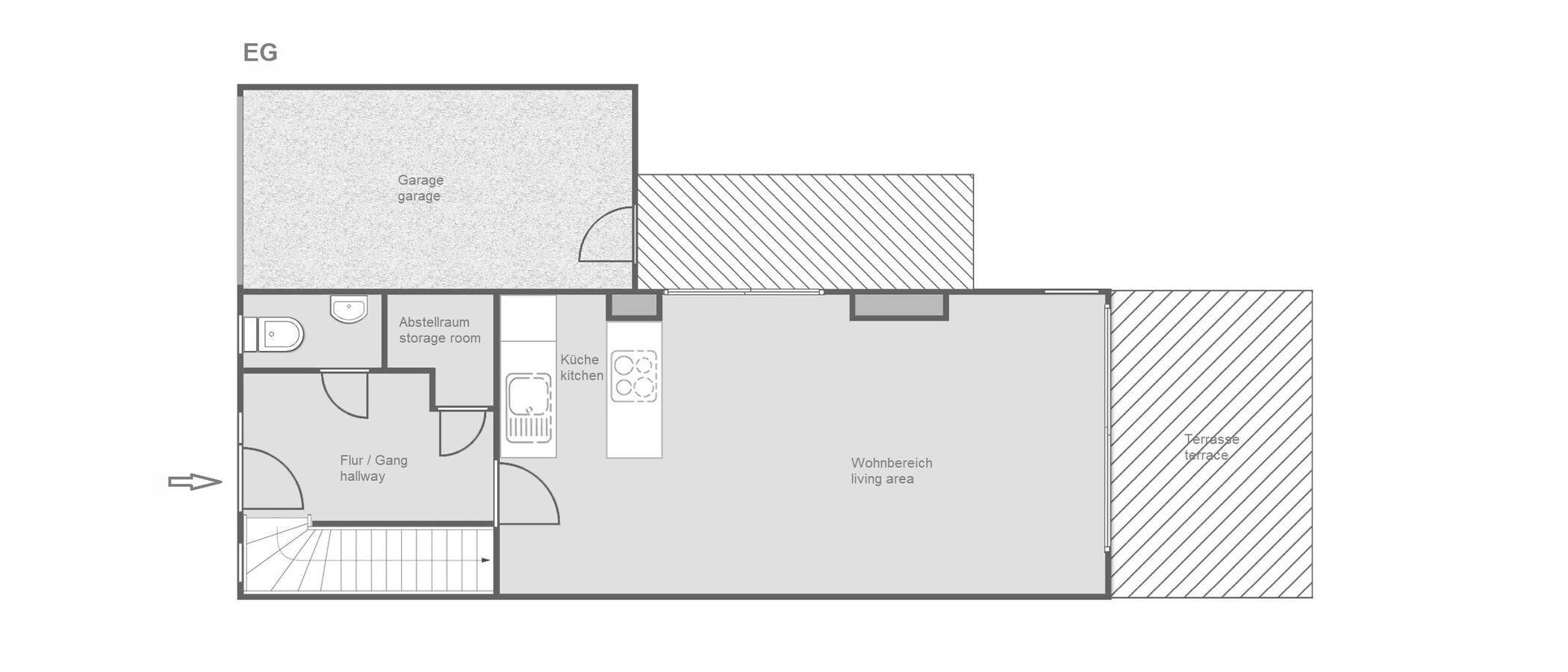
リビングダイニング カウチあり ダイニング・テーブル&チェアセット完備
1つめの寝室 ダブルクッションベッド付き 200 x 200 cm
シングルベッド1台の2つ目の寝室 100 x 200 cm
シングルベッド1台の3つ目の寝室 90 x 200 cm
ゲストルーム ソファベッドあり およびワーキングスペース 地階にあり
バスルーム2部屋
ゲスト用 WC
床材
床板, タイル床貼り
家具
部分的に新品同様, 明るい色調でおしゃれなインテリア, 高級, 高品質, デザイナー・スタイル
キッチン
新品同様 居間につながるオープンキッチン, 窓あり, 食器洗い機, 冷蔵庫, IH 調理器, 電気オーブン, 換気フード, 電子レンジ, 食器完備
諸設備
地階に専属洗濯機あり
衛星テレビ, 薄型テレビ
ベッドリネンとタオル類を含みます
掃除機, アイロン台, アイロン

暖炉
インターネット
無線LAN
定額制インターネット (ダウンロードは 200 Mbit/s)
料金は家賃に含まれています
スペシャル
光溢れる家
とてもおしゃれな大きなテラス

お掃除ロボット, 納戸・物入れ, 空港路線 S1, 地下物置
駐車場
シングル・ガレージ:ミュンヘンの駐車場
費用は賃貸料に含まれています
家賃についての情報と説明
インクルーディング: 管理費, インターネット, シングルガレージ
プラス: 電気料金, 暖房費と給湯費, 水
敷金
家賃2か月分
公共放送受信料
ドイツ公共放送受信料(日本のNHK受信料に類似)は、ご入居の方から直接、ドイツ公共放送局ARDおよびZDFにお支払いいただくもので、月額18,36ユーロです。この金額は、契約書に明記されていない限り、家賃には含まれません。 further information
省エネ建築物証明の
Year of construction: 2015
Type of Energy Performance Certificate: 消費証明書
主要エネルギー源: 電気
Energy efficiency class: A
エネルギー消費量特性値: 31,00 kWh/(m²*a)
ツィルヴィア・ ツェレシネス

ツィルヴィア・ ツェレシネス

カスタマーサービス

まだぴったりのアパートが見つかりませんか?

当社の賃貸チームが、お客様のお探しをお手伝いいたします。お電話(+49 89 3408 230)またはお問い合わせフォームからお気軽にお問い合わせください。折り返しご連絡いたします。なお、土曜日もご予約を受け付けております。

検索クエリを入力する

住居の場所

Franz-Kötterl-Straße

München Feldmoching

  • 市辺縁部
  • とても静か
  • 庭 南向き
  • 約 8,7 km 北 ミュンヘンの中心
周辺情報についてもっと詳しく
Uバーン
ルート・ナンバー U2, 駅 Feldmoching (2 分 徒歩で)
Sバーン
ルート・ナンバー S1, 駅 Feldmoching (3 分 徒歩で)
バス
ルート・ナンバー 170 と 171, 駅 Feldmoching Bahnhof Ost (2 分 徒歩で)
ルート・ナンバー 172 と N41, 駅 Paidarstraße (5 分 徒歩で)
ルート・ナンバー 170, 171, 172, 173 と N41, 駅 Feldmoching (2 分 徒歩で)

類似の物件

アティック・フラット(屋根裏) 部屋数 2.5 部屋 | ミュンヘン-Feldmoching | 9344
即時 から 6-36 ヶ月
2.5 部屋
65 m²
ミュンヘン-Feldmoching
1,890
月額
マンション 部屋数 2 部屋 | ミュンヘン-Feldmoching | 13848
ビデオ
即時 から 6-18 ヶ月
2 部屋
56 m²
ミュンヘン-Feldmoching
1,890
月額
アティック・フラット(屋根裏) 部屋数 2 部屋 | ミュンヘン-Lerchenau | 12556
ビデオ
01.06.2026 から 6-36 ヶ月
2 部屋
71 m²
ミュンヘン-Lerchenau
2,100
月額
アパルトマン 部屋数 1 部屋 | ミュンヘン-Fasanerie | 5372
ビデオ
02.06.2026 から 6-36 ヶ月
1 部屋
27 m²
ミュンヘン-Fasanerie
1,250
月額
セミ・デタッチド・ハウス(一戸建てを二つに分けた家屋) 部屋数 5 部屋 | Wörthsee | 14511
ビデオ
01.05.2026 から 6-15 ヶ月
5 部屋
160 m²
Wörthsee
3,290
月額
Cookie notice
This website uses cookies to personalize content, customize and measure advertising, and provide a safe experience. By clicking the "Allow all and continue" button, you consent to the collection of data via cookies.
お客様のブラウザー設定のクッキーをオンにしてください。